
9ÔÂ16ÈÕ-17ÈÕ£¬µÚËĽìÐÂÐÍÐÞ½¨¹¤Òµ»¯Éú³¤¹ú¼Ê£¨ÉîÛÚ£©á¯ÁëÂÛ̳ôß¾«Æ·Õ¹»áÓÚÉîÛÚ´ó÷ɳ¾©»ùϲÀ´µÇÂùݾÙÐС£¸÷¼¶Ö÷¹Ü²¿·ÖÏòµ¼¡¢ÔºÊ¿¡¢Ñ§Õß¡¢ÁúÍ·ÆóÒµ¼Ò¡¢×ÅÃûר¼ÒµÈ50ÓàÈË£¬Î§ÈÆ¡°Ì¼´ï·å̼Öк͡±¡¢¡°¸ßÖÊÁ¿Éú³¤¡±¡¢¿ç½çÈںϡ¢¿ª·Å¹²ÏíµÈÐÐÒµ½¹µã£¬ÅäºÏ̽ÌÖÔõÑùÒÔÐÂÐÍÐÞ½¨¹¤Òµ»¯ÖÜÈ«ÌáÉý¿Æ¼¼Á¢ÒìÄÜÁ¦£¬ÖÜÈ«ÍÆ½ø¹¤Òµ»¯¡¢ÐÅÏ¢»¯¡¢ÂÌÉ«»¯×ªÐÍ¡£
ÂÛ̳ÒÔ¡°Ö¾´°ÙÄêÕ÷³Ì£¬Öþ»ùÐÂÐÍÖÆ×÷¡±ÎªÖ÷Ì⣬ÔÚס·¿ºÍ³ÇÏ罨É貿¿Æ¼¼Ó빤ҵ»¯Éú³¤ÖÐÐÄ¡¢¹ã¶«Ê¡×¡·¿ºÍ³ÇÏ罨ÉèÌü¡¢ÉîÛÚÊÐס·¿ºÍ½¨Éè¾Ö¡¢ÉîÛÚÊж¼»á½¨ÉèÀàÐÐҵ͎ᵳί¡¢ÉîÛÚÊÐÑÎÌïÇø×¡·¿ºÍ½¨Éè¾ÖµÄÖ¸µ¼Ö§³ÖÏ£¬ÓÉÉîÛÚÊÐÐÞ½¨¹¤Òµ»¯Ð»áÖ÷Àí¡£×ðÁú¿Ê±ÖйúÕ¾Ö´ÐжÊ¡¢¸±×ܲá¢ÐÞ½¨¹¤Òµ»¯¹«Ë¾×Ü˾ÀíÁúÓñ·åÊÜÑû³öϯá¯ÁëÂÛ̳£¬ÍŽá´óÍåÇøÐÞ½¨¹¤Òµ»¯Éú³¤ÏÖ×´£¬·ÖÏí×ðÁú¿Ê±ÖйúÕ¾¹ú¼ÊÒÔÈ«¹¤ÒµÁ´ÐͬÉú³¤Íƶ¯ÐÂÐÍÐÞ½¨¹¤Òµ»¯ÓëÂÌÉ«Éú³¤µÄʵ¼ù֮·¡£



¡øÂÛ̳¼°Õ¹»áÏÖ³¡£¬ÁúÓñ·åÈÙ»ñ¡°½ðÚɽ±¡±Ð»á»á³¤¾Û»áÓÅÒìÒéÌâ¶þµÈ½±-»¬¶¯Éó²é
2021ÄêÊÇ¡°Ê®ËÄÎ塱¿ª¾ÖÖ®Ä꣬¾Í×°ÅäʽÐÞ½¨¶øÑÔ£¬½øÈëÁ˹ú¼Ò²ãÃæ¶¦Á¦´ó¾ÙÉú³¤×°ÅäʽÐÞ½¨Ê®Äê¶¥²ãÍýÏëµÄ¡°Ï°볡¡±¡£¾ÓÉ¡°Ê®ÈýÎ塱ʱÆÚµÄ̽Ë÷ʵ¼ù£¬×°ÅäʽÐÞ½¨ÒѾ½øÈëÁ˼ÓËÙÉú³¤ºÍÀ©ÃæÌáÖʵĽ׶Ρ£
½ñÄê3Ô£¬ÌìÏÂÁ½»áÊ״ν«¡°Ì¼´ï·å¡¢Ì¼Öк͡±Ð´ÈëÕþ¸®ÊÂÇ鱨¸æ£¬ÕýʽÀ¿ªÁË¡°Ë«Ì¼Ä¿µÄ¡±ÏêϸʵÑéÖ®ÄêµÄÐòÄ»¡ª¡ªÖйú¶þÑõ»¯Ì¼ÅÅ·ÅÁ¦Õù2030ÄêǰµÖ´ï·åÖµ£¬Æð¾¢ÕùÈ¡ÔÚ2060ÄêǰʵÏÖ̼Öк͡£ºã¾ÃÒÔÀ´£¬¹Å°åÐÞ½¨Òµ±£´æ×Ź¤ÒµÁ´Ðͬˮƽ²»¸ß¡¢×éÖ¯¹ÜÀíË鯬»¯¡¢ÖÆ×÷·½·¨´Ö·ÅÂäÎé¡¢ÔËÓªÀú³Ì̼ÅÅ·ÅÕ¼±È¸ß¡¢¼ÈÓÐÐÞ½¨¸ßºÄÄܸßÅŷŵÈÍ»³öÎÊÌ⣬µ¹±ÆÐÞ½¨ÒµÏò¿Æ¼¼º¬Á¿¸ß¡¢¾¼ÃÐ§ÒæºÃ¡¢×ÊÔ´ÏûºÄµÍ¡¢ÇéÐÎÎÛȾÉÙµÄÐÂÐÍÐÞ½¨¹¤Òµ»¯õ辶תÐÍÉý¼¶¡£Í¬Ê±£¬¸ßÖÊÁ¿Éú³¤ÊÇÐÞ½¨ÐÐÒµ¡°Ê®ËÄÎ塱ʱ´úÉú³¤µÄÖ÷Ì⣬½¨Éè¸ßÆ·ÖʵÄÐÞ½¨¡¢ÊµÏÖÌáÖÊÔöЧ£¬ÌáÉýÖйúÖÆ×÷ˮƽÊÇÐÞ½¨ÐÐÒµ×·ÇóµÄÄ¿µÄµ¼Ïò¡£ÐÂÐÍÐÞ½¨¹¤Òµ»¯ÊÇͨ¹ýÐÂÒ»´úÐÅÏ¢ÊÖÒÕÇý¶¯£¬ÒÔ¹¤³ÌÈ«ÊÙÃüÆÚϵͳ»¯¼¯³ÉÉè¼Æ¡¢¾«Ò滯Éú²úÊ©¹¤ÎªÖ÷ÒªÊֶΣ¬ÕûºÏ¹¤³ÌÈ«¹¤ÒµÁ´¡¢¼ÛÖµÁ´ºÍÁ¢ÒìÁ´£¬ÊµÏÖ¹¤³Ì½¨Éè¸ßÐ§Òæ¡¢¸ßÖÊÁ¿¡¢µÍÏûºÄ¡¢µÍÅŷŵÄÐÞ½¨¹¤Òµ»¯¡£ÐÞ½¨ÐÐÒµ×÷ΪÈý´óÄÜÔ´ÏûºÄÐÐÒµÖ®Ò»£¬ÔÚÂõÏò¡°Ë«Ì¼¡±Ä¿µÄºÍ¡°ÎªÈËÃñΪÉç»áÌṩ¸ßÆ·ÖÊÐÞ½¨²úÆ·¡±Ö®Â·Éϼ縺ÁËÖ÷ҪʹÃü¡£Éú³¤ÒÔ×°ÅäʽÐÞ½¨Îª´ú±íµÄÐÂÐÍÐÞ½¨¹¤Òµ»¯£¬±»¸¶ÓëÁ˸üÉîÔ¶µÄÄÚÔں͸üÁÉÀ«µÄ¿Õ¼ä¡£//˫̼ĿµÄϵÄÂÌÉ«Éú³¤Õ½ÂÔ×÷Ϊ¡°½¨ÉèÖйúÌØÉ«Éç»áÖ÷ÒåÏÈÐÐÊ÷Ä£Çø¡±£¬×èÖ¹ÏÖÔÚ£¬ÉîÛÚÊÐ×°Åäʽ±ÈÀýÒѵִï43%£¬ÔÚÌìÏÂѹµ¹Ò»ÇС£¹ã¶«Ê¡ÔÚ×°ÅäʽÐÞ½¨¡¢ÂÌÉ«ÐÞ½¨µÄÑз¢ºÍÖÆ×÷ÉÏÒà×ßÔÚÌìÏÂǰÏߣ¬´´Á¢ÁËÐí¶à¿ÉÍÆ¹ã¡¢¿É¸´ÖÆ¡¢¿Éѧϰ¡¢¿É½è¼øµÄÃû¹óÂÄÀú¡£Ê®ÈýÎåʱ´ú£¬¹ã¶«Ê¡×°ÅäʽÐÞ½¨ÀۼƵִï1.08ÒÚÆ½·½Ã×£¬ÂÌÉ«ÐÞ½¨Àۼƽ¨³É5ÒÚÆ½·½Ãס£2021ÄêÉϰëÄ꣬װÅäʽÐÞ½¨Íê³É3000Íòƽ·½Ã×£¬Õ¼½ñÄêпª¹¤ÐÞ½¨Ãæ»ýµÄ15%¡£ÏÖÔÚ£¬´óÍåÇøÐÂÐÍÐÞ½¨¹¤Òµ»¯Éú³¤£¬ÒÑÐγÉÁúÍ·ÆóÒµÖ÷µ¼µÄÃûÌã¬Õþ¸®Í¶×ÊÏîÄ¿½ÓÄÉEPCģʽΪÖ÷£¬¶ÔÉè¼Æ¡¢Ê©¹¤Ò»Ì廯µÄÐèÇóÆÈÇС£´óÍåÇø¹¤Òµ»¯¹¤ÒµÅäÌ׳ÉÊ죬¶¼»áÖ®¼äÄܹ»ÐγÉÓÐÓõÄ×ÊÔ´»¥²¹¡¢¹¤ÒµÐͬ£¬´ó×ÚÏîÄ¿µÄʵÑéÂÄÀú¶ÔÌìϾßÓÐÖ÷ÒªµÄÊ÷Ä£ÒâÒå¡£
×ݹÛÕû¸ö´óÍåÇøÐÞ½¨¹¤ÒµÁ´ÏÖ×´£¬ÒÀÈ»±£´æÒ»Ð©ÖÆÔ¼ºÍȱ·¦¡£ÔÚÉè¼Æ»·½Ú£¬BIMÊÖÒÕÓ¦ÓñÈÀý²»¸ß£¬¹Ø×¢ÐÞ½¨Æ·ÖÊ¡¢ÖÊÁ¿¡¢Ä;ÃÐÔȱ·¦£¬¼¯³ÉÉè¼Æ¡¢ÐͬÉè¼ÆÈ±·¦£¬Éú²ú»·½Ú×Ô¶¯»¯¡¢ÖÇÄÜ»¯Ë®Æ½½ÏµÍ£¬ÔÚÊ©¹¤»·½Ú£¬Ê©¹¤¹ÜÀíְԱȱ¿Ú½Ï´ó¡¢¾«ÒæÖÆ×÷Òâʶȱ·¦¡¢¹ÜÀíÒªÁì¹Å°å¡¢¹ÜÀíǰÖÃȱ·¦¡£
×ðÁú¿Ê±ÖйúÕ¾¹ú¼Ê×Ô2004ÄêÆô¶¯×°ÅäʽÉè¼ÆÓëÑо¿£¬Àú¾16Äê̽Ë÷£¬³¬300¸ö×°ÅäʽÐÞ½¨Éè¼ÆÊµ¼ù£¬²»µ«´´×÷ÁËһϵÁоßÓÐÌØÉ«µÄ×°ÅäʽÐÞ½¨×÷Æ·£¬Ò²ÊµÏÖÁË´Óµ¥µãÊÖÒÕˢУ¬µ½ÏµÍ³ÊÖÒÕ¼¯³É£¬ÔÙµ½È«¹¤ÒµÁ´ÐͬÉú³¤£¬ÂõÈëÐÂÉè¼Æ¡¢ÐÂÖÆ×÷¡¢ÐÂÆ½Ì¨µÄ½×¶Î£¬²¢ÓÉ´Ë×ܽáÁËÂÌÉ«Éú³¤µÄ°Ë´óÕ½ÂÔ¡£ÖúÍÆÐÂÐÍÐÞ½¨¹¤Òµ»¯£¬ÒÔʵÏÖÌá¸ßÖÊÁ¿¡¢Ìá¸ßЧÂÊ¡¢ïÔÌÈ˹¤¡¢½ÚÄܼõÅŵġ°Á½ÌáÁ½¼õ¡±ÎªÂÌÉ«Éú³¤Ä¿µÄ£¬ÆäÏêϸÌåÏÖÔÚïÔÌÐÞ½¨ºÄ²Ä¡¢Ìá¸ßÈ˾ù¹¤Ð§¡¢Ëõ¶Ì½¨É蹤ÆÚ¡¢½µµÍÐÞ½¨Äܺġ¢Ìá¸ßÐÞ½¨ÊÙÃüµÈ·½Ã档Ϊ´Ë£¬×ðÁú¿Ê±ÖйúÕ¾¹ú¼ÊÌá³ö°Ë´óÂÌÉ«Éú³¤Õ½ÂÔ¡£ÔÚ¡°Ë«Ì¼¡±Ä¿µÄÏ£¬Éæ¼°ÐÞ½¨Éè¼Æ¡¢Ê©¹¤¼°ÔËӪȫÀú³ÌµÄ¹¤ÒµÁ´½«±»Ç㸲¡£
×ðÁú¿Ê±ÖйúÕ¾¹ú¼Ê°Ë´óÂÌÉ«Éú³¤Õ½ÂÔ1 Ìá¸ßÉè¼Æ¡¢Éú²ú¡¢Ê©¹¤È«Àú³ÌÐͬˮƽ2 Ìá¸ß×°Åäʽ¡¢Â̽¨¡¢BIMÊÖÒÕ¼¯³ÉÉè¼ÆË®Æ½3 Ìá¸ßÈ«ÉúÃüÖÜÆÚÐÞ½¨²úÆ·Òâʶ4 Ìá¸ßÍÁ½¨×°ÐÞÒ»Ì廯ˮƽ£¬ÍƽøÈ«×°ÐÞ¼°×°ÅäʽÄÚ×°6 Ìá¸ß¹¤³§×Ô¶¯»¯¡¢ÂÌÉ«»¯Éú²úˮƽ7 Ìá¸ß¾«Òæ»¯ÖÆ×÷¡¢ÖÇÔìˮƽ//×ðÁú¿Ê±ÖйúÕ¾¹ú¼ÊµÄÁ¢Òìʵ¼ù
¹ÜÀíģʽÁ¢Òì+ÊÖÒÕϵͳ¼¯³É

½¨É赥λ£ºÉîÛÚÊи£ÌïÈ˲Ű²¾ÓÓÐÏÞ¹«Ë¾
½üÄêÀ´£¬×ðÁú¿Ê±ÖйúÕ¾¹ú¼Ê»ùÓÚÈ«¹¤ÒµÁ´½á¹¹£¬×öÁË´ó×Úʵ¼ùÓëÁ¢Ò죬ÐÂɳ˰Îñ¾ÖÈ˲ŷ¿¾ÍÊÇÆäÖÐÖ®Ò»¡£ÏîÄ¿ÊÇÉîÛÚÊÐÈ˲Ű²¾Ó¼¯ÍŵÚÒ»¸öÉè¼ÆÇ£Í·µÄEPC¹¤³Ì£¬×ðÁú¿Ê±ÖйúÕ¾¹ú¼Ê×÷ΪÉè¼ÆÓëÊ©¹¤µÄÖ÷Ì嵥룬ÒÔϸÄ廯Éè¼ÆÍýÏë¡¢EPCͳ³ï¹ÜÀíÄÜÁ¦¡¢±ê×¼»¯Éè¼Æ¡¢È«Àú³ÌBIMÓ¦Óá¢ÂÌɫװÅäʽ¼¯³ÉÎå´óÏîĿսÂÔ¡£ÎÒÃÇÏ£Íûͨ¹ýÉè¼ÆÇ£Í·µÄEPCģʽ£¬ÊµÏ֏߯·ÖÊ¡¢ÇéÐÎÓѺõÄÐÂÐÍÂÌÉ«È˲ŷ¿¡£

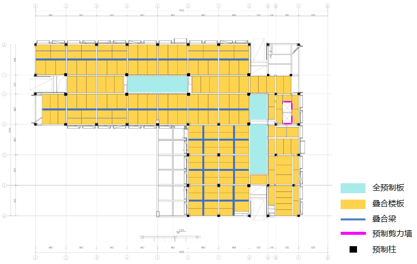
ÏîÄ¿Ëù½ÓÄɵÄÔ¤ÖÆ¹¹¼þÓÐÔ¤ÖÆÍâǽ£¨Í¹´°¡¢Ï¹Ұ壩¡¢Ô¤ÖƵþºÏÂ¥°å£¬±ê×¼»¯¹¹¼þÁè¼ÝÁË80%¡£

BIMÓ¦ÓÃÔÚÏîÄ¿ÖУ¬ÊµÏÖÁËÔÚÉè¼Æµ½Ê©¹¤µÄÈ«Àú³Ì¹á´®¡£»ùÓÚ×ðÁú¿Ê±ÖйúÕ¾iBIMÉè¼ÆÆ½Ì¨£¬Ò»Ì×ÍêÕûµÄÐÞ½¨Êý×ÖÄ£×Ó£¬´ÓÉè¼Æ£¹¹¼þÉú²ú£Ê©¹¤ÏÖ³¡£ÔËάµÄÕýÏòת´ï£¬ÊµÏÖÁËÊý¾Ý´ÓÉè¼Æ¶ËÏòÔËά¶ËµÄÑÓÕ¹¡£Í¬Ê±£¬ÊµÏÖÁËÐÞ½¨¡¢½á¹¹¡¢¸øÅÅË®¡¢Å¯Í¨¡¢µçÆø¡¢×°ÅäʽÁù´óרҵµÄÕýÏò³öͼ£¬´ÓÈýάģ×ÓÖ±½ÓÊä³öÓÃÓÚ±¨Åú±¨½¨¡¢Ôì¼Û¸ÅËã¡¢¹¹¼þ¼Ó¹¤µÄ¶þάͼֽЧ¹û¡£

½«BIMÄ£×Ó·¢Íù¹¹¼þ³§¾ÙÐб¸ÁϺÍÄ£¾ßÉè¼Æ£¬Í¨¹ýƽ̨»¯¹ÜÀí£¬ÊµÏÖ´Ó¹¹¼þ¶©µ¥ÌõÔ¼µ½³ö»õÈ«Àú³Ì¿ÆÑ§ÍýÏëÅų̣¬ÊµÊ±ÕÆÎÕÉú²ú½ø¶ÈºÍÒì³££¬ÊµÊ±±¨¹¤¡£

ÔËÓÃBIMÊÖÒÕ¾ÙÐи÷½×¶ÎÊ©¹¤Æ½Ãæ²ß»®£¬ÔÚÊ©¹¤Ô°µØÓÐÏÞµÄÌõ¼þÏ£¬ºÏÀíÍýÏëPC¹¹¼þµÄÔËÊä¡¢¶Ñ·Å¡¢µõ×°µÈ¡£

ÏîĿʹÓÃÕýÏòÉè¼ÆÄ£×ÓºÍ×ðÁú¿Ê±ÖйúÕ¾ËÙ½¨ÈýάÉè¼ÆÆ½Ì¨£¬¸ßЧµØ¾ÙÐÐ×°ÅäʽÆÀ·ÖÅÌËã¡¢»§Ðͱê×¼»¯ÅÌËã¡¢¹¹¼þ±ÈÀýÅÌË㣬ÅÌËãЧ¹û¿É×Ô¶¯ÌìÉúÅÌËãÊé¡¢µ¼³öÆÀ·Ö±í£¬´ó´óïÔÌÈ˹¤ç¢Â©ºÍÌîд¹ýʧ¡£
×÷ΪEPC×ܳаüÏîÄ¿£¬Ðè˼Á¿Éè¼ÆÐÅÏ¢µÄת´ïºÍºóÐø½×¶ÎµÄBIMÓ¦Óá£Òò´Ë£¬ÎÒÃÇÔÚÏîÄ¿ÖоÙÐÐÁËÁ¢Ò죬½«Éè¼ÆÄ£×ÓÖ±½ÓÌìÉú¹¤³ÌÁ¿Çåµ¥£¬ÔÚÔì¼Û¸ÅËãÌåÀýʱʹÓÃÉè¼ÆÄ£×Ó¾ÙÐÐÔì¼ÛÊÔË㣬±È¶ÔÔì¼ÛËãÁ¿Ð§¹û£¬Ì½Ë÷ÔÚÊг¡»¯ÏîÄ¿ÖС°Ò»Ä£¾¿¾¹¡±µÄ¿ÉÐÐÐÔ¡£

Êý×Ö»¯Ä£×Ó¾«¶È£¬ÍêÍòÄܹ»ÊµÏÖÔÚ¹¤³ÌËãÁ¿ÖеÄ׼ȷµ¼³ö¡£
ÎªÍ»ÆÆ¼ÈÓÐÇéÐÎÏÞÖÆ½Ï¶à¡¢ÓõØÏÁÕµÄÁÓÊÆ£¬Ò»ÊÇʹÓÃÊý×Ö»¯Æ½Ì¨£¬Ä£ÄâÎïÀíÇéÐÎÆÊÎöЧ¹û£¬ÓÅ»¯»§ÍâÔ°µØÇéÐΣ¬¾«×¼¶¨Î»Ìñ¾²¹«¹²»î¶¯Çø£»¶þÊÇͨ¹ýÂÌÉ«½ÚÄÜÊÖÒÕ£¬´´Á¢ÇéÐÎÒËÈ˵ÄÖÇ»ÛÈ˾ӡ£

ΪÁËÌáÉýÆÜÉíÆ·ÖÊ£¬Éè¼Æ´òÔì¿ÕÖС°´Î¼¶µØÃ桱£¬ÒýÈë¿ÕÖÐÂÌÉ«½Úµã£¬µ÷Àí¾Ö²¿Î¢ÌìÆø£¬¼¤»î¿ÕÖпµ½¡»îÁ¦µÄÀ´Íù¿Õ¼ä£¬×¡Ãñ¿ÉÒÔͨ¹ý¿ÕÖл¨Ô°¹²ÏíÖÐÐū԰µÄ¾°¹Û¡£

»§ÐÍϸÄ廯Éè¼ÆÖУ¬ÊµÏÖÁ˼«Öµıê×¼»¯£¬¼«´óͳһÁ˲¿Æ·²¿¼þµÄÉè¼Æ£¬²¢ÔÚÐÞ½¨Öǻۻ¥ÁªÖУ¬¼¯³ÉÁËÐÞ½¨¼à²âÐÅÏ¢¡£Í¬Ê±£¬»ùÓڸ߱ê×¼»¯Éè¼Æ£¬ÎÒÃÇÔÚÏîÄ¿ÖÐÌá³öÁË×°ÅäʽÄÚ×°½â¾ö¼Æ»®£¬²¢Ì½Ë÷³öÒ»Ì×ÊÊÓÃÓÚÉîÛÚÌìÆøÌõ¼þºÍÉîÛÚ¹«¹²×¡·¿±¾Ç®¿ØÖƱê×¼µÄ×°ÅäʽÄÚ×°ÊÖÒÕϵͳ¡£ÎÒÃÇÏ£Íûͨ¹ý¸É·¨×÷Òµ´Ó¹«Çøµ½»§Ä򵀮ͱéÓ¦Óã¬ÊµÏÖÂÌÉ«»·±£µÄÁ¢Òì¡£



×°ÅäʽÄÚ×°
ϸ½ÚÉè¼ÆÎ§ÈÆÕûÌåÍýÏë¡¢»§ÐͲúÆ·¡¢ÐÞÈ·Á¢Ãæ¡¢ÊÒÄÚ×°ÐÞ¡¢Ô°ÁÖ¾°¹Û¡¢ÉçÇøÅäÌס¢Öǻ۷þÎñµÈÄÚÈÝ£¬ÒÔ²úÆ·Í·ÄÔ¾ÙÐдòÔì¡£
ÏîÄ¿µÄÀÖ³Éʵ¼ù£¬ÕýÊÇ»ùÓÚ×ðÁú¿Ê±ÖйúÕ¾¹ú¼Ê¶àÄêÀ´¶Ô¹«¹²×¡·¿²úÆ·µÄÉè¼Æ±ê×¼»¯Ñо¿Óë¹ÜÀíģʽÁ¢Ò죬ÖÂÁ¦ÓÚ¡°ÈÃͨË×ÊÐÃñ¹ýÓÐÆ·ÖʵÄÉúÑÄ¡±µÄ²úÆ·Ô¸¾°£¬Í¨¹ý¡°¹¤Òµ»¯+ÂÌÉ«+BIM¡±µÄÊÖÒÕϵͳ¼¯³ÉºÍÈ«¹¤ÒµÁ´Ðͬ£¬Ò»Ö±Á¢ÒìÉè¼ÆµÄ¼ÛÖµ¡£
02 DreamOffice
×ðÁú¿Ê±ÖйúÕ¾¹ú¼Ê¶«Ý¸¹¤ÒµÔ°Ñз¢Â¥
×ÔÖ÷Éè¼Æ¡¢×ÔÖ÷Éú²ú¡¢×ÔÖ÷ÖÆ×÷¡¢×ÔÖ÷ÔËÓª
È«Á÷³ÌÖ÷µ¼µÄ²úÆ·¼¶ÐÞ½¨ÊµÑé

½¨É赥λ£º×ðÁú¿Ê±ÖйúÕ¾
ÏîÄ¿ÀàÐÍ£º¹¤ÒµÔ°/EPC¹¤³Ì×ܳаü
ÏîÄ¿ËùÔÚ£º¹ã¶«£¬¶«Ý¸
ÓõØÃæ»ý£º8,000©O
×ÜÐÞ½¨Ãæ»ý£º22,000©O
Éè¼ÆÊ±¼ä£º2018-2020
PC¹¹¼þÉú²úµ¥Î»£º¶«Ý¸ÈóÑôÍŽáÖÇÔìÓÐÏÞ¹«Ë¾
Ê©¹¤µ¥Î»£º»ªÌ©Ê¢¹¤³Ì½¨É蹫˾
×ðÁú¿Ê±ÖйúÕ¾¹ú¼Êһֱ̽Ë÷×°ÅäʽÐÞ½¨µÄ¸ßÆ·ÖÊÌáÉý¡£Dream Office¶«Ý¸¹¤ÒµÔ°Ñз¢Â¥ÊÇ×ðÁú¿Ê±ÖйúÕ¾¹ú¼Ê¡°×ÔÖ÷Éè¼Æ¡¢×ÔÖ÷Éú²ú¡¢×ÔÖ÷ÖÆ×÷¡¢×ÔÖ÷ÔËÓª¡±È«Á÷³ÌÖ÷µ¼µÄÀíÏë°ì¹«ÐÞ½¨¡£ÔÚÉè¼ÆÇ£Í·µÄEPC½¨ÉèģʽÏ£¬ÒԸ߱ê×¼×°Åäʽ¡¢ÂÌÉ«ÊÖÒÕ¡¢BIMÊÖÒյÉÓ¦Óã¬ÖØÐ½ç˵Éè¼Æ¼ÛÖµ£¬ÍØ¿í×°ÅäʽÐÞ½¨ÊӽǵIJúÆ·¼¶ÐÞ½¨¡£

ÏîĿ԰µØÄñî«
ͨ¹ý±ê×¼»¯Ä£¿éÉè¼Æ¡¢¼Æ»®´´ÒâÉè¼ÆÒýÁì¡¢BIMÈ«Àú³ÌÓ¦ÓÃÉè¼Æ/¹ÜÀí¡¢EPCÍŶÓÖÜȫͳ³ï¹ÜÀí¡¢ÂÌÉ«ÊÖÒÕ/×°ÅäʽÊÖÒÕ¼¯³ÉÓÅ»¯Îå´óÏîĿսÂÔ£¬×¢ÖØÒÔ´´×÷ÒýÁì×°ÅäʽÉè¼Æ£¬ÊµÏÖ¸öÐÔ»¯Óë±ê×¼»¯µÄƽºâ¡£

Éè¼ÆÊ¹ÓÃÒ»¸ö¼òÆÓµÄLÐÍÐÎÌåΧ³ÉÄÚÔº£¬ÃæÏò¶¼»áÒ»²àÐγÉÍêÕû½çÃæ¡£ÎªÍ»ÆÆÖÈÐò£¬LÐÍÌå¿éǶÈëÖÐÍ¥½«ÐÞ½¨´ÓÖÐÐÄÇпª£¬ÔÚÃæÏò¶¼»á½çÃæÓëÖ÷Èë¿ÚÍ¥Ôº·¿ªÎó²î£¬ÈÃÍⲿ¹ÛÕß¿ÉÒÔ¿´µ½ÊÒÄÚ£¬ÊµÏÖÐÅÏ¢ÉøÍ¸¡£Í¬Ê±£¬Èý¸öÎó²îÖÐÖÃÈëºìɫ¥ÌÝ£¬¼«¾ßÊÓ¾õ¹¥»÷Á¦£¬Â¥ÌÝ×÷Ϊ¹«¹²½»Í¨ÏµÍ³£¬½«ÖÐÍ¥Ó빫¹²¿Õ¼ä´®ÁªÆðÀ´£¬³ÉÎªÍ»ÆÆÕû¸öPCÄ£¿é»¯Éè¼ÆºÍÖÈÐòµÄÒ»¸ö¡°²»Çå¾²¡±ÒòËØ¡£

»ùÓÚÄ£Êý»¯ÖùÍøµÄÌõ¼þ£¬Éè¼ÆÒýÈë¡°Öйú¹Å´ú»î×ÖÓ¡Ë¢µÄ¿É¸´ÖÆ¿´·¨¡±£¬ÍŽṤҵ»¯»ùÒò£¬ÔÚ½ÏΪ¹æÕûµÄÐÞ½¨ÐÎÌåÉÏ£¬½ÓÄÉ×°Åäʽ¿ò¼Ü½á¹¹£¬¼°5¸ö¡°±ê×¼»¯´°¶´µ¥Î»×é¼þ¡±¾ÙÐÐÁ¢ÃæÅÅÁÐ×éºÏ£¬Ðγɼ«¾ßÌØÉ«µÄ°ì¹«ÐÞ½¨¿Õ¼äºÍÁ¢Ã漡Àí¡£Í¬Ê±£¬ÓÉÓÚÏîÄ¿ÅԱ߾ÍÊÇ×ðÁú¿Ê±ÖйúÕ¾¹ú¼ÊµÄPC¹¹¼þ³§£¬ÒÔÊÇÎÒÃÇÔÚÔ¤ÖÆ¹¹¼þµÄÉè¼ÆºÍ±ê×¼ÉÏ£¬×öÁ˴󵨵ÄÁ¢Òì¡£

ÐÞ½¨Æ½Ã棬½ÓÄÉ8400*8400µÄÄ£Êý³ß´ç£¬Ðγɱê×¼¿Õ¼äµ¥Î»¡£

Ö÷Á¢Ãæ½ÓÄɱê×¼³ß´ç4200*4200µÄÔ¤ÖÆÍâǽ°å£¬Öظ´Âʸߣ»Í¨¹ý´´Á¢ÖÈÐò£¬²¢Êʵ±Í»ÆÆÖÈÐò£¬µÖ´ï¸öÐÔ»¯Éè¼ÆÓë±ê×¼»¯ÖÆ×÷µÄƽºâ¡£
ÒÔÉè¼ÆÇ£Í·µÄEPCģʽ£¬½«½¨ÉèÖÜÆÚËõ¶Ì¿ØÖÆÔÚ400ÌìÒÔÄÚ£¬±¾Ç®ïÔÌ10%£»Í¨¹ýBIMÈ«Àú³ÌÕýÏòÉè¼ÆµÄÓ¦Óã¬ËùÓÐÉè¼ÆÒâͼÍêÉÆ·ºÆð£¬Íê³É¶ÈµÖ´ï100%£»ÔÚ×°ÅäʽÊÖÒÕϵͳÏ£¬Â¥¶°×°ÅäÂʽü80£¥£¬³É¼¨¡°¶«Ý¸ÊÐÊ׸öA¼¶×°ÅäʽÐÞ½¨¡±¡¢Ê×Åú¡°¹ã¶«Ê¡×°ÅäʽÐÞ½¨Ê÷Ä£ÏîÄ¿¡±¡¢¡°¹ú±êAA¼¶×°ÅäʽÐÞ½¨¡±¡£

BIMÈ«Àú³ÌÕýÏòÉè¼Æ

½¨Ä£±ê×¼»¯

×°Åäʽ²ð·ÖÅÌË㣺Êý¾ÝÓëÄ£×Ó¹ØÁª£¬Í¨¹ýÄ£×ÓÐÅÏ¢¶¯Ì¬µ÷½â¹¹¼þ²ð·Ö¹æÄ££¬ÓÅ»¯Éè¼Æ¡£

ƽ̨×Ô¶¯ÌìÉú¶Ô¹¹¼þ¾ÙÐÐÉú²úÊ©¹¤µÄÉÉè¼Æ£¬²¢ÇÒͨ¹ýÄ£×Óµ¼³ö¹¹¼þÄ£°åͼ¡¢Åä½îͼ¡£

Ô¤ÁôÐÅÏ¢Ìí¼Ó½Ó¿Ú£¬¿Éͨ¹ýBIMÉè¼Æ¾ÙÐдó×ÚµÄÓÅ»¯£¬Í³³ïÉú²ú¡¢Ê©¹¤¶ÔÔ¤Âñ¼þµÄÉè¼ÆÒªÇó¡£
ÏîĿƾ֤LEED½ð¼¶µÄ±ê×¼¾ÙÐÐÉè¼Æ£¬Í¨¹ý±»¶¯Ê½ÊÖÒÕµÄÓ¦Óã¬ÒÔ¼°¡°ÄÚÇøÖÐÍ¥+Ìì¾®Éè¼Æ¡±µÄ¿Õ¼äÁ¢Ò죬ʵÏÖµÍÌ¼ÖÆ×÷¡£

±»¶¯Ê½×ÔȻ͸·ç
½ñÄêÆßÔ£¬Ñз¢Â¥ÒѾÓÀ´µÚÒ»ÅúÔ±¹¤Èëפ¡£ÇåË®ËØ»ìÄýÍÁʵǽ£¬ÌåÏÖÁ˹¤Òµ»¯ÖÆÔìµÄ¼«Ö¡£Éè¼Æ½ÓÄÉÒõ¿Ì¡¢Ñô¿Ì͹ÏÔ»ìÄýÍÁÕÅÁ¦µÄͬʱ£¬Æ½Õû¡¢Æ½»¬¡¢É«ÔóÔȳƵÄÍâ¹Û£¬Ò²Õ¹ÏÖ³öÐÞ½¨×îʵÖʵÄÃÀ¸Ð¡£
¡ª
×ðÁú¿Ê±ÖйúÕ¾¹ú¼ÊÖÂÁ¦ÓÚÒÔÉè¼ÆºÍÑз¢ÎªÁúÍ·£¬ÒÔ×°ÅäʽÐÞ½¨ºÍBIMΪ½¹µãÊÖÒÕ£¬Í¨¹ýÈ«¹¤ÒµÁ´½á¹¹£¬´òÔìÈ«ÇòÁìÏȵÄÉè¼Æ¿Æ¼¼ÆóÒµ¡£