????????
ÍåÇø¾¼ÃáÈÆð£¬ÉîÛÚ×÷Ϊ½¹µãÒýÇæ£¬ÒѾ³ÉΪȫÇò¾¼ÃÖ÷ÒªÔöÌí¼«£»ÉîÛÚÍ峬µÈ×ܲ¿»ùµØÊÇÉîÛÚΨһÒÔ¡°³¬µÈ¡±ÃüÃû£¬±»¸¶Óë×î¸ßÍýÏë±ê×¼µÄ×ܲ¿»ùµØ£¬ÕýÒý·¢¶¼»áÉúÑĵÄÈ«ÐÂÀå¸ï¡£
SIC³¬µÈ×ܲ¿ÖÐÐÄ£¬ÓÉÉîÛÚµØÌú¼¯ÍÅÓëÍò¿Æ¼¯ÍÅÇãÁ¦´òÔ죬ÉîÛÚÍ峬µÈ×ܲ¿»ùµØÄÚҵ̬¸´ºÏ¶È×î¸ßµÄ×ÛºÏÌåÏîÄ¿£¬ÏîÄ¿´Ó¡°³¬µÈ×ÔÈ»Éú̬¡±¡¢¡°³¬µÈ¾°¹Û×ÊÔ´¡±¡¢¡°³¬µÈ¶¼»áµ×ÅÌ¡±¡¢¡°³¬µÈ¹¤Òµ×ܲ¿¡±¡¢¡°³¬µÈÉúÑÄ·½·¨¡±¼°¡°³¬µÈ¶¼»áµØ±ê¡±Áù¸öά¶ÈÀ´´òÔìδÀ´³¬ÉúÑÄÌåÑ飬×ÜÌåÁ¿µÖ´ï60Íòƽ·½Ã×£¬°üÀ¨358Ã׳¬¼×¼¶Ð´×ÖÂ¥¡¢ÉîÛÚ×î¸ßµÄÏã¸ñÀïÀÂùݡ¢¸ß¶ËȦ²ãÉ罻ƽ̨¡°SIC65ÉÌÎñ»áËù¡±¡¢ÉîÛÚÊ׸ö¿Æ¼¼¸³ÄܵĹºÎïÖÐÐÄ¡¢ÒÔ¼°¸ß¶Ë¹«Ô¢µÈ¡£

×ðÁú¿Ê±ÖйúÕ¾¹ú¼Ê×÷Ϊ³¬¸ß²ãËþÂ¥µÄÁ¢ÃæÉè¼ÆÒÔ¼°Æ½ÃæÓÅ»¯µ¥Î»¼ÓÈëÆäÖУ¬ÔÚ×ðÖØÏîÄ¿¾«ÉñµÄ»ù´¡ÉÏ£¬´ÓÕû¸öÐÞ½¨ÐÎÌå±ÈÀý¾ÙÐÐÍÆÇ㬴òÔìÆæÒìµÄ¿Õ¼äÁÁµã£¬°Ñ¿ØÃ¿Ò»´¦Ï¸½ÚµÄÏêϸ±ê×¼£¬ÒÔ×·Ç󶼻όµãµØ±êϵͳÐÔ¡¢ÆæÒìÐÔµÄÐÞ½¨±í´ï¡£
01 ÐÎÌå
ÍåÇøC룬ÊÖÒÕÓëÃÀѧÈںϵij¬µÈµØ±ê
×÷ΪÉîÛÚÍ峬µÈ×ܲ¿»ùµØÊ×ϯµØ±ê£¬SIC¼ç¸ºÒýÁìδÀ´ÍåÇø¶¼»áÌìÑÄÏßµÄÔðÈΡ£
ÏîÄ¿¶àÖÖҵ̬±ÊÖ±µþ¼Ó£¬¹¦Ð§ÖØ´ó£¬ÔõÑùÐÞ½¨¾µäµÄÐÞ½¨ÐÎÌåÓë±íƤ¼¡Àí£¬ÇÒÓëÄÚ²¿¹¦Ð§ÏàÎǺϣ¬Æä±³ºó²»·¦çÇÃÜ˼Ë÷¡£

ÔÚ³¬¸ß²ãËþÂ¥£¬Éè¼ÆÖØ¸´´òÄ¥ÑüÏß±ÈÀý£¬Í¨¹ýËþ¹Ú¸ß¶ÈÑо¿¡¢ÐÞ½¨Öв¿µÄÊÕ·ÖλÖÃÒÔ¼°½Ç²¿¿ªºÏµÄÖØ¸´ÍÆÇõ÷½â£¬Í»³öͦÐãµÄÐÞ½¨ÐÎÏ󣬴òÔì¶¼»áÊ̵ִĵرêÐÎÏ󣬼ÈÊǶÔÉ×ÜδÀ´µÄÕ¹Íû£¬Ò²ÊǶÔÉè¼Æ¾«ÉñµÄ×î¼ÑÚ¹ÊÍ¡£

ÑüÏß±ÈÕÕ
ͬʱ£¬ÓÃͳһµÄÐÞ½¨ÓïÑÔ£¬´ÓµØÃæÑÓÉìµ½¿ÕÖУ¬´®ÁªÊúÏò¸÷¹¦Ð§£¬½«È«³¡¾°µÄ¶¯ÏßÍýÏëÊÕÄÉÓÚͳһµÄÔÏÂÉת±äÖ®ÖУ¬´òÔìÆõÊÊʱ´úµÄ¾µäÆøÖÊ¡£

02 ÁÁµã
358Ã׸߿գ¬×ÔÈ»ÓëÉúÑij¡¾°µÄÓлú¾ÛºÏ
ÏîĿϣÍûͨ¹ý¶àά¿Õ¼äµÄÈ«ÐÂʵÑéÓë½â¹¹£¬Ôڸ߿ÕÖ®ÉÏ£¬´´Á¢Ò»´¦¾ßÓжàÖØ¿ÉÄÜÐÔ¡¢³äÂú»¥¶¯µÄÐðÊ¿ռ䣬ÒýÁìδÀ´³¬µÈÉúÑÄ·½·¨£¬½«ÓÅÖʵÄ×ÊÔ´¹«¹²»¯¡£
ÏîÄ¿¶«ÃæÊdz¬×ÜÍåÐÄ£¬ÕýÃæÊÇÉîÍåÂ̹ȺÍδÀ´³Ç¼¹µÄÊ®×Ö½»µã£¬ÄÏÃæÊÇÉîÛÚÍåµÄεÀ¶º£°¶Ïߣ¬×øÓµÉîÍ峬µÈ×ÔÈ»¾°¹Û¡£

Éè¼ÆÊ¹ÓÃÕâÒ»Æð¾¢ÒòËØ£¬ÍŽáÌìÑľưɡ¢Îݶ¥Í£»úƺ£¬ÔÚËþÂ¥¶¥´òÔì¡°ÍåÐÄÖ®ÑÛ¡±ÔƼʹ۾°Æ½Ì¨£¬Ò²ÊǺ£ÄÚΨÖðÒ»¸ö´¦ÓÚ350Ã׸߶ÈÒÔÉϵġ¢ÁÙº£¿ª·Åʽ¹Û¾°Æ½Ì¨£¬°ÑÐÞ½¨ÎÝÃæ¿Õ¼ä´òÔì³ÉΪһ´¦¼¯ÆæÒìÐÔ¡¢ÌåÑéÐÔ¡¢¹«¹²ÐÔ¡¢³¡¾°ÐÔºÍÒÕÊõÐÔÓÚÒ»ÌåµÄ¶¼»áÔÆ¶ËÐÝÏÐÄ¿µÄµØ¡£

¶¼»áÖ®ÉÏ£¬²»ÔÙÖ»ÊǸßËÊÈëÔÆµÄ²£Á§Ä»Ç½£¬ÉÐÓж¼»áÈËÎļ°×ÔÈ»¾°¹ÛµÄÖ±½Ó½Ó´¥¡£ÐµĿռäÀíÄîÓëÒ»Ñùƽ³£ÉúÑÄÏàÓö£¬ÔÚ×ÔÈ»»Ã»¯¡¢¹âÓ°ÏûÊż䣬ÈËÃÇ¿ÉÒÔ¸ü×ÔÓɵغôÎü¡¢´¥Ãþ¡¢¸ÐÊÜ¡£



¶«Á¢ÃæËþ¹ÚÁ¢ÃæÍ¼

´ÓµØÃæµ½¸ß¿Õ£¬´ÓÐúÄÖµ½Çå¾²£¬×ÔÈ»¶øÈ»µØ¿ªÆôÉúÑĵÄÒÇʽ¸Ð£¬ÓëÉîÛÚÍåÅϳäÂúÉúÆøÓë»îÁ¦µÄ¿ÕÆøºÍ¾°Ö±¬·¢»¥¶¯£¬ÈÃSIC³ÉΪ¼¤»îÆ¬ÇøµÄÄÜÁ¿³¡¡£

ȫϢͶӰ
03 ϸ½Ú
¾«Öþϸ½Ú£¬´´×÷Óë¶¼»á¾«ÉñµÄÉî¶ÈÈÚºÏ
ÏîĿϣÍû½«¶¼»áµÄ¾«ÉñÊôÐÔÈÚÈëÐÞ½¨´´×÷£¬³Ð¼ÌÐÞ½¨¡¢ÈË¡¢ÉúÑÄÏàÈÚÏàÉúµÄÆð¾¢Ì¬¶È£¬ÒÔÓâԽʱ¼äµÄǰհ̬¶È£¬¿¼¾¿ÖÊÁÏ¡¢±ê׼ÿһά¶È£¬¾«Öþ½Úµã¡¢µÆ¹âÿһϸ½Ú£¬´òÔìÆæÒìµÄ¶¼»áÉúÃüÌå¡£
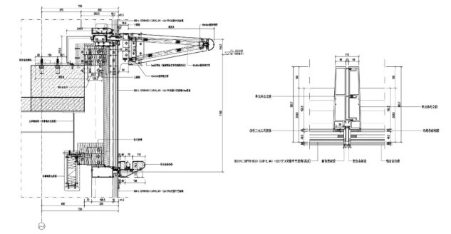
ËþÂ¥½ÓÄɺáÃ÷ÊúÒþµÄĻǽÐÎʽ£¬ºáÏòÏßÌõÒÔÖв¿Îª»ù×¼£¬ÏòÁ½²àËõ¶Ì£¬ÒÔ½¥±äµÄ·½·¨Í¹ÏÔÐÞÈ·Á¢ÃæµÄÌåÁ¿¸Ð£¬ÔöÇ¿ÐÞ½¨×ÔÉíÆø¸Å¡£²ã¼äµÚ¶þÌõ¸Ë¼þÔÚÇ¿»¯Öв¿ÒõÓ°¹ØÏµµÄͬʱ˼Á¿µÆ¹âµÄÒþ²ØÉèÖã¬ÒÔ¾®È»ÓÐÐòµÄÂß¼°Ñ¿ØºÍ¸»ºñµÄϸ½Ú×éÖ¯£¬½øÒ»²½»ØÓ¦ÐÞ½¨ÕûÌå¸ÐÓëÑÓÕ¹ÐÔ¡£


×󣺺áÏòÏßÌõ ÓÒ£º²£Á§Ä»Ç½½Úµã
Ëþ¥ת½ÇÒÔ¾«Á·µÄ½ðÊôÏßÌõÓëÇå½à²£Á§Ä»Ç½ÎªÖ÷£¬Ç¿µ÷´¿´â¡¢Í¨Í¸¡¢ÃæÏòδÀ´µÄÐÞ½¨ÆøÖÊ¡£


½Ç²¿²ã¼ä½Úµã

½Ç²¿×ª½Ç½Úµã
ÔÚÁ½²àÑüÏßµÄÉè¼ÆÀú³ÌÖÐÖØ¸´Ñо¿²¢µ÷½âÑüÏß½ØÃæ³ß´ç£¬Ê¹ÆäÏà¹ØÓÚ350¶àÃ×µÄËþÂ¥±ÈÀýе÷£¬¸üΪͻ³ö¡£Àú³ÌÖУ¬½ÓÄɲî±ðµÄÖÊÁÏÓëÐÎʽ¾ÙÐбÈÕÕ£¬¾ÓÉÖØ¸´ÑùÊ½ÍÆÇÃÓëµÆ¹âÉè¼ÆÈ·¶¨½ØÃæÐÎʽ¼°ÖÊÁÏ£¬Ê¹Õû¸öÑüÏßÔÚÒ¹Íí¿ÉÒÔµÖ´ïÒ»¸ö×î¼ÑµÄÊÓ¾õЧ¹û¡£


ÑüÏß½ØÃæ

½Úµã¿ØÖÆ

Ñù°å¶Î¿ØÖÆ
ÔÚÊÓ¾õÑù°åÈ·¶¨¹ÒÑù֮ǰ£¬ÏÈͨ¹ý1:1СÑù¾ÙÐвÄÖÊÓëµÆ¹âʵÑ飬ȷÈϸ˼þµÄÏêϸ×ö·¨Óë¹ÒÑùÖÊÁÏ£¬ÒÔ°ü¹ÜÊÓ¾õÑù°å¹ÒǽºóµÄЧ¹û¡£

1:1ʵÌåÑù°åʵÑé

×ó£ºÊµÌåÑù°å ÓÒ£ºµÆ¹â²âÊÔ
ÔÚ¿ÉÔ¤¼ûµÄδÀ´£¬SIC½«ÒÔÁ¢Ìå¸ßЧµÄ¶¼»á¿Õ¼ä£¬ÒýÁì×ۺϡ¢ÐÂÓ±¡¢Æ·ÖÊ¡¢±ã½ÝµÄδÀ´ÉúÑÄ·½·¨¡£
¶ø×ðÁú¿Ê±ÖйúÕ¾¹ú¼ÊÉíÔÚÆäÖУ¬´´×÷µÄÀ¶Í¼Öð½¥ÆÌ¿ª£¬¹ØÓÚ¶¼»áδÀ´µÄǰհ̽Ë÷Ò²ÔÚÖð½¥±»ÑéÖ¤£¬ÏÖÔڼƻ®»¹ÔÚÉÖУ¬ÆÚ´ýδÀ´£¡
ÏîÄ¿µµ°¸
ÏîÄ¿Ãû³Æ£ºSIC³¬µÈ×ܲ¿ÖÐÐÄ
ÏîÄ¿ÀàÐÍ£º¸´ºÏÐÍTOD×ÛºÏÌå
ÏîÄ¿ËùÔÚ£ºÉîÛÚ£¬ÉîÛÚÍ峬µÈ×ܲ¿»ùµØ
ÓõØÃæ»ý£º54,000m?
×ÜÐÞ½¨Ãæ»ý£º461,000m?
³¬¸ß²ãËþÂ¥¼ÆÈÝÃæ»ý£º189,000m?
Éè¼ÆÊ±¼ä£º2020Æð
½¨É赥λ£ºÉîÛÚµØÌú¼¯ÍÅ¡¢Íò¿Æ¼¯ÍÅ
³¬¸ß²ãËþÂ¥Á¢ÃæÉè¼Æµ¥Î»£º×ðÁú¿Ê±ÖйúÕ¾¹ú¼Ê
Ê©¹¤Í¼Éè¼Æµ¥Î»£ºÅ·²©AUBE
ĻǽÕÕÁϵ¥Î»£º°¢·¨RFR
ĻǽÉµ¥Î»£º½ðÔÁ
·þÎñ¹æÄ££º³¬¸ß²ãËþÂ¥Á¢Ãæ¼Æ»®Éè¼Æ
????????